Unfolding the old city
Project: First Year Studio- Second Semester
Year: 2015
Professor: Arch Ori Shalom
Collaboration with Tom Asiskovich
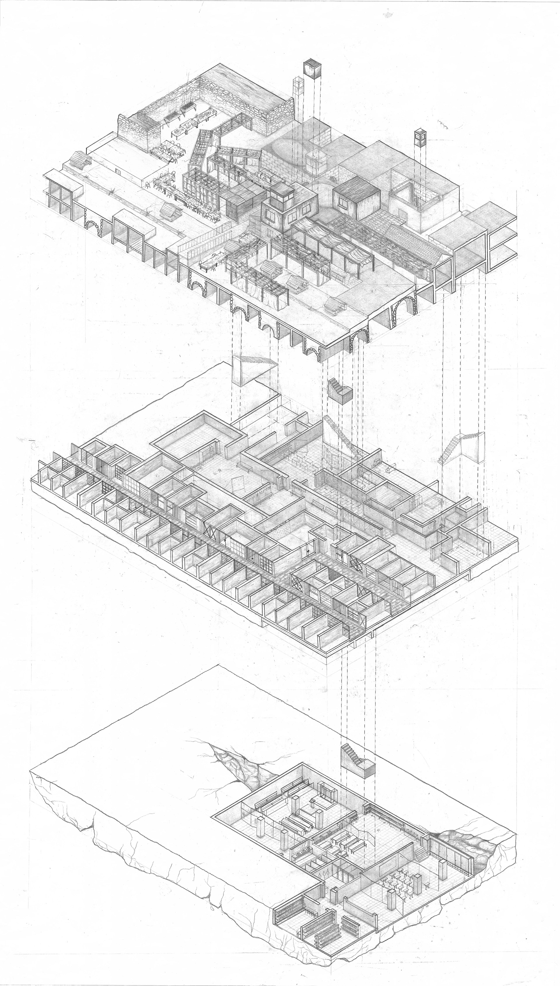
Following a deep observation of Galicia roofs in the Old City of Jerusalem, my partner, Tom Asiskovich, and I discovered various architectural phenomena that produce tense situations and complex layers of private and public spaces. We chose to study self-construction practices in the area as they constitute the main building method in the site. After a long process of examination and analysis, we started producing documents that study a suggestive situation of the area in 10 years, taking into consideration many parameters including the natural increase of population and the development of existing programs as tool of critically analysing the site and setting the ground for our intervention. The following step was to plan temporary events, that work in harmony with the self-construction in its temporality and the use of light materials, that would occur on top of the future state as we suggested.

Section Collage of The Site

Catalog of Furniture

Collage of Self-Constructed Elements

Isometric Drawing of Proposed State
Stop-motion of Events Changing